



We utilized somewhat wasted space in our yard to expand our home and create our dream bathroom. The larger side of the garden was full of goat head weeds, very bad for growing actual plants. We had moved our garden a couple of years earlier to the other side of our yard. We did have a cute Christmas-looking tree on the corner, but it was sacrificed in the building process. Our patio was somewhat small, despite an extra expansion from the previous owners. The last thing we decided to add-on was a patio expansion and cover.

Bathroom “before” picture. We could barely fit a small bathmat and bathroom scale on the floor, but there was no room to walk. Plus counters and bathtub shelves usually have all the essential things and then some on them









It was so strange seeing a hole in our wall. That was the point of no return, things got really real at that point. It made our bedroom very cold for a while, while they worked. We have a slab foundation but chose to do a crawl space under the new bathroom to ensure easy access incase any issues arose.






Next, the walls went up! We chose to make the house square off at the end. That gave us the extra square footage to make our bonus room larger, a much larger master bathroom, an actual walk-in closet, a new laundry room, and remodel the old laundry room into a new garage access/shoe room.








Our poor lawn was destroyed in the construction process, and we had to take our gate and part of our fence down to accommodate the work. We chose to extend the patio to the new edge of our home. The roof was one of the largest hold-ups in the entire process. We had to go through a couple different builders until one found a solution viable for our home.
Rimrock Roofing was very professional and did a great job, they’re based out of Kuna. You can contact them at: rimrockroofing@gmail.com






Our home felt more cramped before, we do not miss the old layout! The backroom was smaller and did not have a closet at all. Our master closet was quite small, despite these pictures making it look larger. Our bedroom had two doors right next to each other which made a whole wall useless – one for the bathroom and one for the closet.
Here is a walkthrough video of our home partway through the process.
Here is a walkthrough video of the outside of our home addition partway through the process.







Our girls thought it was crazy being a part of the process. It was definitely different living in a construction zone!







Our adorable little pug, Olive, enjoyed sneaking through the open partially blocked hallway to explore the new expansion. It was really cool starting to see our designs and concepts come to life. The first part that really started to take shape and look real to us was the shower. We spent hours deciding things like will there be a bench, where will the bench go, how many shower heads, learning what a rainfall shower is, debating colors, looking at tiles, looking at hardware, etc.




I love taking baths, and was so excited that we chose a really large soaker tub. One of the last minute changes we made was putting some extra support in the wall to have the extra strength to hang a tv near the tub along with a little shelf. Honestly, it is an amazing addition! It’s very easy to want to spend hours in the bath relaxing.






We really loved the idea of a more open-concept floor plan, while increasing storage. The sheetrock went up and it was much easier to have a realistic feel of how much space we were gaining.


One of the strangest things about building a bathroom is buying things like a bathtub or a toilet. Keep in mind that if you find a store that has toilets you can sit on to test, wear the flattest shoes you can. I was wearing taller shoes that day, and my legs are now too short to reach the floor. With bathtubs, most places do not have floor models, because they’re so large. I didn’t think I would want one with a bench or little shelves, but my husband thought they were a great idea. I do have slight regret about not having a handheld sprayer installed, it would have helped with dog baths and spraying soap out of my kids’ hair. The bench is a great place to rest your feet at an angle, or place to sit while you shave. I use the little shelves for bath bombs and bubble bars.






I was really proud of these designs. We spent a lot of time looking at closets online, and deciding what was most important to us. Our priorities were double rods, section for dresses, place for shoes, and some storage up top. Our shoe shelves have a his and hers section, with some taller to accommodate different types of shoes. There was debate about whether we would want a slanted or flat shelf. The slanted shelf is still really deep, and can still hold a half-height cube organizer bin.We have many cube organizers and cube bins. We designed our main shelves to each be the size of a cube organizer cube. Our clothing racks also have a shelf between the double rods, in case we ever wanted less space for clothing and more for storage.




We chose a large vanity with double sinks, shorter cabinets to allow for extra drawers, and under-mounted trench rectangle porcelain sinks. Our cabinets were all custom-made locally. The granite countertop was really interested, because one side is beautifully polished, while the other had a completely different texture and looked completely different when wet. Our backsplash was from Home Depot and paired perfectly with our tile and vanity counter.
Our counter was from Stone Surfaces in Eagle, it was Polished Tyberian Black Granite Slab with an eased flat polish edge. You view more of their products here: https://granite208.com/

This was our old laundry room that led to the garage. We converted it into a room for putting on and storing shoes, not shown is a large shelf and hanging rod about the bench that stretches to each side.

Picture of my girls and I for scale of our bathtub!






Our shower is everything we wanted it to be. It has gorgeous tile and THREE shower heads. We did end up getting one rainfall, a wand, and a static head. The backsplash in the shower niche’s matches the backsplash in the rest of the bathroom. The tile on the walls is the same as the bathroom floor. Originally our plan was to keep the shower all one height to the rest of the bathroom. That would have let water get into the rest of the bathroom more easily. We ended up making a raised section between the bathroom and the shower. I was worried I’d stub my toe on it, but it’s been two years and I haven’t yet! We do need to upgrade our water heater, currently, we don’t use more than two shower heads at a time, to make the hot water last longer. *Sidenote, the niches in this image were still drying, that is why there are little orange pieces*



On the first image you can see the top color is the new carpet we picked out, the bottom was the carpet original to our home. The prior owners had young kids, as did we. We also had a dog. The carpet lived a good, long life, but it was time to go! It was amazing how changing something like the carpet makes your whole house look brand new.
We love the Better Home and Garden Cube Organizers. We have them in all of our bedrooms, office, living room, play room, etc. They’re fantastic for the price and look great.


To make our new laundry room we flipped it to the other side of the wall it had been, it made it cheaper since the hookups just were moved to the other side of the wall. We added an upper storage shelf, a rod for hangers, and a nice shelf for laundry items that was similar to our bathroom’s color. The shelf is made similarly to the bathroom shelves, but it was wrapped in vinyl.




Going into the addition, we hadn’t picked an accent color. The first thing I really wanted to add was some relaxing artwork. Initially, I thought I’d put it across from the mirror. I ended up really loving that wall staying blank though, it made it feel really open when you’re getting ready. We put it over the tub, that canvas set is available on Amazon. All my larger organization tubs were purchased from Target. The navy color complimented our bathroom color scheme really well. My husband purchased me the new Echo Dot with a clock. I love that you can see the time from the bath, sinks, and toilet! I wanted our shelves to be butcher block style, and enjoy the look of how thick they appeared. We also opted to have our molding to be made of the same tile, it looks very clean and matches around the room.




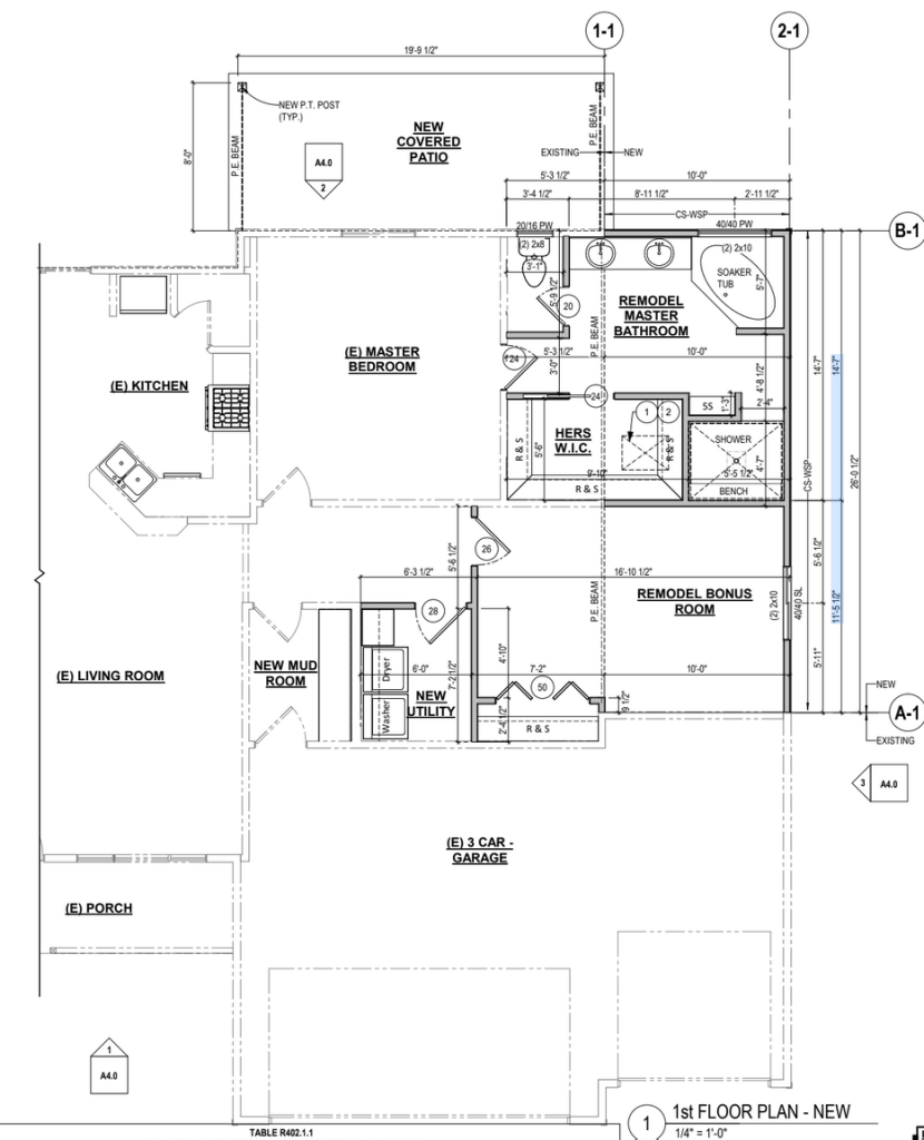
Risen Home Design made the floor plans shown above. They did a great job.









The first three images are how I organized a few of the drawers. I found cute little blue, white an grey organizer bins in a set that fit perfectly! The clear tubs on my top shelf are only $6.99 right now at Costco for a pack of four! My makeup organizer is from Walmart, it’s two stacked on top of each other. The blue bins are full of hair products, medicine, Bath & Body Works products, Victoria Secret Products and Lush Products. I repurposed a cute Box from Lush to discretely hold all of our bandaids. My Cakes box is a good contrast with the box. In our throne room we have been keeping some of the art we have made over the years. The bottom tile is from our first trip to Cabo though when we first got married. We went to an art night at the library for adults and made that button art. All the art outside the bathroom matches very well though! Under the sinks is shorter, but allows for a great amount of storage. I am so happy we put extra drawers instead of a taller sink space.
Overall, we are beyond thrilled with our new addition. We tried hard to utilize all the space we could in our addition! There aren’t that many changes we would make aesthetically if we could do it again. I feel like I never want to move because we love our bathroom and addition so much!
